Rodzinny Zakątek
| Położenie | Kraków — Skotniki |
|---|---|
| Adres | ul. Józefa Unruga dz. nr 321—323 |
| Zabudowa | wolnostojąca / bliźniacza / dwulokalowa |
| Poziomy | 3 |
| Ogród | TAK |
| Balkon | TAK |
| Garaż | TAK |
Szczegóły
- Sąsiedztwo Bielańsko–Tynieckiego Parku Krajobrazowego
- Prywatne ogrody
- Wentylacja mechaniczna, ogrzewanie podłogowe, pompy cieplne — w standardzie
- Duże garaże (w tym dwustanowiskowe) oraz zewnętrzne miejsca parkingowe
- Internet światłowodowy
- Swoboda aranżacji poddaszy
- Przystanek autobusowy „Winnicka” w odległości 200m, pętla tramwajowa „Czerwone Maki P+R” — 1200m
„Rodzinny Zakątek” to niewielkie osiedle budynków trójpoziomowych w typie mieszanym: wolnostojącym, bliźniaczym i dwulokalowym. Powierzchnia oferowanych jednostek mieszkaniowych wynosi od 88,13 do 203,16 m², liczba pokojów od 3 do 5 — przy czym powierzchnia poddaszy pozwala na swobodne zaaranżowanie dodatkowych pomieszczeń.
Każdą z oferowanych jednostek mieszkaniowych wyposażono w garaż, do każdej z nich przynależy także prywatny ogród. Ponadto, we wszystkich budynkach zastosowano szereg rozwiązań technicznych pozwalających ograniczyć koszty użytkowania, m.in. systemy grzewcze wykorzystujące pompy cieplne.
Osiedle położone jest na terenie dawnej wsi Skotniki, należącym obecnie do Dzielnicy VIII Dębniki w Krakowie. Obszar ten charakteryzuje bezpośrednie sąsiedztwo terenów o wysokim walorze przyrodniczym, przede wszystkim Bielańsko–Tynieckiego Parku Krajobrazowego. Okolicę cechuje ponadto obecność wysoko rozwiniętej infrastruktury transportowej, handlowo–usługowej, edukacyjnej (Szkoła Podstawowa nr 66 i Przedszkole Samorządowe nr 23 — 200m, dwa żłobki niepubliczne — 500 i 800m), a także rekreacyjnej (kluby sportowe, tor kajakowy, ścieżki rowerowe).
Oferta



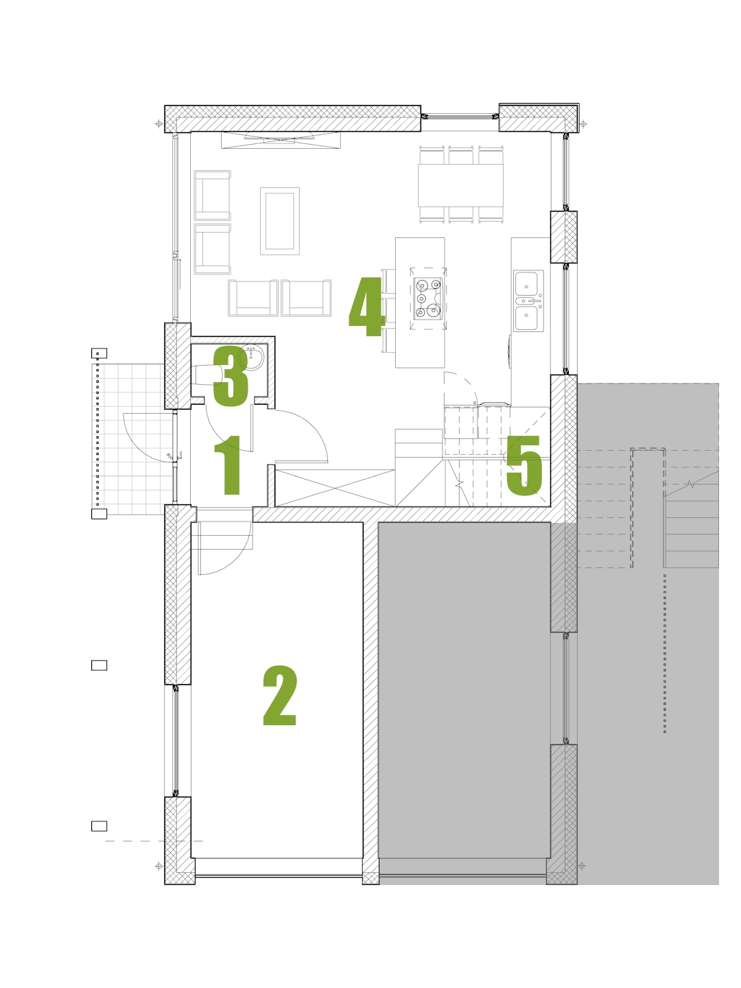
| 1 | Przedpokój | 4,64 |
|---|---|---|
| 2 | Toaleta | 1,58 |
| 3 | Garaż | 35,04 |
| 4 | Pokój z aneksem kuch. | 36,86 |
| 5 | Klatka schodowa | 2,65 |
| Parter — łącznie | 80,77 | |
| 6 | Klatka schodowa | 5,02 |
| 7 | Przedpokój | 6,75 |
| 8 | Łazienka | 5,57 |
| 9 | Pokój | 13,52 |
| 10 | Pokój | 13,87 |
| 11 | Garderoba | 4,41 |
| 12 | Pokój | 10,38 |
| 13 | Pokój | 16,40 |
| 14 | Łazienka | 2,98 |
| Piętro — łącznie | 78,90 | |
| 15 | Poddasze | 43,49 |
| Poddasze — podłoga | 77,27 | |
| Poddasze — łącznie | 43,49 | |
| Ogród | 320,99 | |
| Balkon | 9,09 | |
| Parking | 12,50 | |
| Budynek A | 203,16 |



| 1 | Przedpokój | 5,04 |
|---|---|---|
| 2 | Garaż | 34,71 |
| 3 | Toaleta | 1,27 |
| 4 | Pokój z aneksem kuch. | 33,68 |
| 5 | Klatka schodowa | 2,13 |
| Parter — łącznie | 76,83 | |
| 6 | Klatka schodowa | 4,77 |
| 7 | Przedpokój | 4,25 |
| 8 | Łazienka | 6,56 |
| 9 | Garderoba | 3,92 |
| 10 | Pokój | 11,91 |
| 11 | Pokój | 13,53 |
| 12 | Pokój | 17,00 |
| 13 | Pokój | 8,47 |
| 14 | Łazienka | 2,78 |
| Piętro — łącznie | 73,19 | |
| 15 | Poddasze | 34,57 |
| Poddasze — podłoga | 72,20 | |
| Poddasze — łącznie | 34,57 | |
| Ogród | 149,34 | |
| Balkon | 8,21 | |
| Parking | 12,50 | |
| Budynek B1 | 184,59 |



| 1 | Przedpokój | 5,81 |
|---|---|---|
| 1a | Toaleta | 2,21 |
| 2 | Garaż | 19,15 |
| 3 | Kotłownia | 3,90 |
| 4 | Pokój z aneksem kuch. | 34,46 |
| 5 | Klatka schodowa | 2,18 |
| Parter — łącznie | 67,71 | |
| 6 | Klatka schodowa | 4,69 |
| 7 | Przedpokój | 4,48 |
| 8 | Garderoba | 3,92 |
| 9 | Łazienka | 5,21 |
| 10 | Pokój | 12,01 |
| 11 | Pokój | 10,42 |
| 12 | Pokój | 14,99 |
| 13 | Pokój | 8,47 |
| 14 | Łazienka | 2,49 |
| Piętro — łącznie | 66,68 | |
| 15 | Poddasze | 28,38 |
| Poddasze — podłoga | 65,28 | |
| Poddasze — łącznie | 28,38 | |
| Ogród | 145,44 | |
| Balkon | 7,34 | |
| Parking | 12,50 | |
| Budynek B2 | 162,77 |



| 1 | Przedpokój | 5,04 |
|---|---|---|
| 2 | Garaż | 34,71 |
| 3 | Toaleta | 1,27 |
| 4 | Pokój z aneksem kuch. | 33,68 |
| 5 | Klatka schodowa | 2,13 |
| Parter — łącznie | 76,83 | |
| 6 | Klatka schodowa | 4,77 |
| 7 | Przedpokój | 4,25 |
| 8 | Łazienka | 6,56 |
| 9 | Garderoba | 3,92 |
| 10 | Pokój | 11,91 |
| 11 | Pokój | 13,53 |
| 12 | Pokój | 17,00 |
| 13 | Pokój | 8,47 |
| 14 | Łazienka | 2,78 |
| Piętro — łącznie | 73,19 | |
| 15 | Poddasze | 34,57 |
| Poddasze — podłoga | 72,20 | |
| Poddasze — łącznie | 34,57 | |
| Ogród | 150,40 | |
| Balkon | 8,21 | |
| Parking | 12,50 | |
| Budynek C1 | 184,59 |



| 1 | Przedpokój | 5,81 |
|---|---|---|
| 1a | Toaleta | 2,21 |
| 2 | Garaż | 19,15 |
| 3 | Kotłownia | 3,90 |
| 4 | Pokój z aneksem kuch. | 34,46 |
| 5 | Klatka schodowa | 2,18 |
| Parter — łącznie | 67,71 | |
| 6 | Klatka schodowa | 4,69 |
| 7 | Przedpokój | 4,48 |
| 8 | Garderoba | 3,92 |
| 9 | Łazienka | 5,21 |
| 10 | Pokój | 12,01 |
| 11 | Pokój | 10,42 |
| 12 | Pokój | 14,99 |
| 13 | Pokój | 8,47 |
| 14 | Łazienka | 2,49 |
| Piętro — łącznie | 66,68 | |
| 15 | Poddasze | 28,38 |
| Poddasze — podłoga | 65,28 | |
| Poddasze — łącznie | 28,38 | |
| Ogród | 142,38 | |
| Balkon | 7,34 | |
| Parking | 12,50 | |
| Budynek C2 | 162,77 |



| 1 | Przedpokój | 2,59 |
|---|---|---|
| 2 | Garaż | 18,54 |
| 3 | Toaleta | 1,30 |
| 4 | Pokój z aneksem kuch. | 35,77 |
| 5 | Klatka schodowa | 2,79 |
| Parter — łącznie | 60,99 | |
| 6 | Przedpokój | 5,04 |
| 7 | Łazienka | 4,94 |
| 8 | Pokój | 13,36 |
| 9 | Pokój | 12,99 |
| 10 | Klatka schodowa | 4,93 |
| Piętro — łącznie | 41,26 | |
| 11 | Poddasze | 23,88 |
| Poddasze — podłoga | 36,69 | |
| 12 | Łazienka | 1,96 |
| Poddasze — łącznie | 25,84 | |
| Ogród | 168,39 | |
| Balkon | NIE | |
| Parking | 12,50 | |
| Lokal D/L1 | 128,09 |



| 1 | Garaż | 18,54 |
|---|---|---|
| Parter — łącznie | 18,54 | |
| 2 | Przedpokój | 3,96 |
| 3 | Łazienka | 1,52 |
| 4 | Pokój z aneksem kuch. | 27,83 |
| 5 | Spiżarnia | 1,75 |
| 6 | Klatka schodowa | 2,25 |
| Piętro — łącznie | 37,31 | |
| 7 | Przedpokój i klatka sch. | 6,04 |
| 8 | Łazienka | 3,83 |
| 9 | Pokój | 10,05 |
| 10 | Pokój | 12,36 |
| Pokój (10) — podłoga | 31,87 | |
| Poddasze — łącznie | 32,28 | |
| Ogród | 56,67 | |
| Balkon 1 | 10,42 | |
| Balkon 2 | 11,20 | |
| Parking | NIE | |
| Lokal D/L2 | 88,13 |






